2025 2학기 설계 이야기 -2화
고독한 건축학도 '허재일' 제 2화 <교수님이 땅이 재밌어야 한다면서요!!!!!!>
교수님은 말하셨다. "이번에 땅을 너무 어려운걸 들고 온거 아니냐, 할 수 있겠냐?"
난 느꼈다 야발 이거 무시하는거다. 하 그래 내가 어려운걸 들고왔지만 이것을 먹어치워서 난 더욱 더 성장 할 수 있을거라고 믿고 있지만 저 양반은 내가 못 해낼거다라고 보는거다.


나는 어려운 고난을 해쳐나가서 성장 할거다 막지마라 이 교수놈아!!!!!!
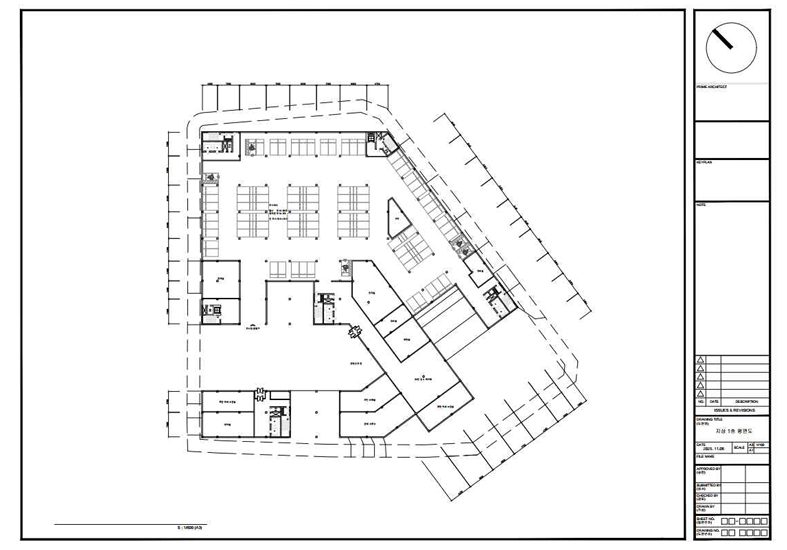
위의 사진에서 보듯이 내 대지의 형상은 사다리꼴이라 하기에도 애매한 모양의 오각형이다. 사선으로 높아지는 경사지이고 제일 낮은 지대가 서쪽의 직각부분이고 북동쪽으로 사선으로 높아지는 고저차 12M 대지 이다.
뭐 이리됐든 저리됐든 지금은 주차장을 짜오면서 매스를 수정하는 시기이다. (다만 매스를 크게 수정하지는 않는다.)

난 아직도 이때 크리틱이 기억에 남는다.
오른쪽이 지상1층에서 들어가는 주차장이다. 하지만 공동주택에서 지하주차장으로 바로 갈 수 없는 세대동이 있다. 교수님은 그 곳을 발견하고 집요하게 파고 들었다. 그렇게 입을 떼고 말씀 하셨다.
교수: "여기는 지하주차장을 못가는 거 아닌가?"
고독한 건축학도 허재일: "네 맞습니다 못가는거죠"
(주변 건축학도 동생들이 나의 크리틱을 듣고 웃기 시작한다.)
교수: "그런게 어디있어 갈 수 있게 만들어"
야발 벌써부터 문제가 발생했다. 나는 좋은집이 있으면 안좋은집도 자동으로 생기기 마련이다라는 생각을 가지고 있다.
당연한거 아닌가? 빛이 있으면 어둠이 있는게 당연하듯 누군가는 베트맨 마냥 암흑을 담당해야만 한다.
하지만 나는 대한민국 미래의 건축을 책임질 건축학도 4학년 같은 3학년 허. 재. 일 이런것에 무너지지 않는다.
땅의 형상 때문에 기존의 매스에서 코어가 내려가면 주차공간이 애매해 진다.

정답은 비틀면서 코어를 박는다. 이동 시키면 그만 아닌가?
그렇게 탄생한 신주차장_V1

이거다 크리티컬 터졌다 주차장 맘에 든다 이녀석 조금 수정을 계속 해야겠지만 이놈 실하다.
여기서 잠깐
건축학과에는 안좋은 문화 같은게 있다 설계실에 남이 한걸 다른 누군가가 검사하는 문화가 있다.
이것은 당사자와 합의 된 행동이 아니다 그냥 뒤에 강압적으로 서있다.
마치 "니놈 어디까지 해왔냐 함 보여봐라 (마치 누가 더 잘해왔는지 검사하는 행동)"

등골이 오싹하면 뒤에 인기척이 느껴진다....
그렇다 설계실은 야생이다
여기서 안보여준다? 상놈의 새끼가 되는거다 보여주기 싫어도 보여줘야 한다. 근데 웃긴거 보여주면 좆지랄을 한다.

남이 해온걸 비웃기도 하며
이게 합법상 크리틱이라는 명목하에 말하지만 좆같은 크리틱을 해주는 애들이 있다. 난 그것을 가볍게 무시하곤 한다.

어쩌라고? 라고 생각 할 수 밖에 없다 자기가 한것도 못하는데 남 훈수질 할 여유가 있는건가 생각이 든다.
교수님: "야 너 저 길다란 좌측면 매스 중간에 구멍 하나 더 뚫어봐라"
나: "네 알겠습니다."
야발 뭐 뚫은게 낫긴한데 뭔가 할 일을 자꾸 쳐 만든다. 처음부터 뚫으라 하던가 무슨 자기가 신도 아니고 노망난게 분명하다.

그렇게 뚫고 만든 도면이 이렇게 나왔다. 하 씹 기둥이랑 보 다시 박는다고 지하주차장 밑에부터 세밀 조정 들어가면서 위에 유닛 크기 조절 하는게 너무 힘들었다 하다가 던질뻔 했지만 잘 참고 했다.
근데 교수님 내가 모델링을 안가져 가고 도면만 가져가니 슬 불안한가 나한테 자꾸 3D 모델링 가져오라고 플러팅 하는거 마냥 말한다.
나는 교수님한테 말했다.
그런거 아직 안만들었다. 다음 시간에 가져온다고 조또 마떼 해라 이놈아.
그렇다 현 시점 11.20 마감이 2주 남았다. 모델링 없다.

머뭇거릴 틈이 없다. 집에 가서 잠시 잠을 자고 모델링을 만들어야 한다!!!!!
나는 대한민국 미래의 건축을 책임질 건축학도 4학년 같은 3학년 허. 재. 일 이런것에 무너지지 않는다.

일단 만들었는데 시간이 없어서 세부 수정 (추가 창호)하면서 3D 프린터로 모델링 한 파일을 넘겨서 뽑아야 한다. 그 말인 즉. 학교에 있어야 한다 새벽에도.
[건축학도 허재일 학교에서 노숙 시작.]
삼디프(3D 프린터의 줄임말)를 돌리려면 옆에 어린아이를 보살펴 주는 돌봄 서비스 마냥 붙어 있어야 한다. + 추가로 콘타모형을 만들어야 한다. 나의 학교 일상을 이렇게 변했다.
1. 모델링을 만든다.
2. 모델링을 삼디프로 뽑아 건축모형을 뽑는다.
3. 콘타모형을 만든다.
4. 건축 패널 레이아웃을 만든다.
이것이 나의 학교 생활이다 씻는거? 그거 집에가서 잠시 씻고 다시 학교와서 반복이다.
그렇다면 오늘 크리틱은?
교수님의 표정은 이렇다

나한테 할 말이 많으면 안된다. 모형이나 빨리 쳐 만들어라. 바쁘다 지금의 넌
교수님 : "어디까지 진행중이냐?"
나 : "삼디프로 뽑고 있다. 콘타는 만들었다(사실 콘타 시작도 안했다. 너(교수)를 안심시키기 위한
트리거다) "
교수님: "다음 시간에는 패널 레이아웃을 좀 들고와야 할 거 같다."
나 : "열심히 해보겠다."
.
.
.